Vlasta Premier Phú Thuận mở ra không gian sống thượng lưu bậc nhất ngay tại tọa độ mặt tiền đường Đào Trí, Phường Phú Thuận, Q7, TP HCM. Được định vị là sản phẩm cao cấp từ Chủ đầu tư Văn Phú Invest, dự án mang đến những giá trị sống khác biệt thông qua hệ thống tiện ích chuẩn mực. Theo báo cáo từ đơn vị phân phối chiến lược Lộc Phát Hưng vào tháng 05/2026, các căn hộ 1 phòng ngủ tại đây có giá dự kiến từ 8X tr/m². Chúng tôi hiện đang trực tiếp chuẩn bị giỏ hàng độc quyền giai đoạn 1 để giới thiệu tới khách hàng.

Bảng Quy Mô Và Thông Tin Kỹ Thuật Vlasta Premier
Để quý đối tác và khách hàng dễ dàng đối chiếu cũng như đánh giá tiềm năng thực tế, Lộc Phát Hưng đã hệ thống hóa lại toàn bộ các dữ liệu quan trọng nhất về dự án Vlasta Premier Quận 7. Dưới đây là bảng thông số kỹ thuật chi tiết giúp bạn có cái nhìn bao quát về công trình này:

Thông Số Chi Tiết Quy Hoạch Căn Hộ Vlasta Premier
| Thông tin triển khai | Nội dung cụ thể |
| Tên đăng ký hồ sơ | Khu chung cư thương mại và dịch vụ hỗn hợp New Tech |
| Tên thương mại dự kiến | Vlasta Premier |
| Địa chỉ xây dựng | Mặt tiền đường Đào Trí, Phường Phú Thuận, Quận 7, TP.HCM |
| Chủ quản phát triển | Công ty Cổ phần Đầu tư Văn Phú – Invest (Hoàn tất M&A vào đầu năm 2025) |
| Nhà thầu xây dựng chính | Công ty Cổ phần Xây dựng Central (Central Cons) |
| Đơn vị giám sát kỹ thuật | Công ty TNHH Apave Châu Á – Thái Bình Dương |
| Diện tích đất quy hoạch | 9.016,5 m² |
| Tỷ lệ xây dựng tổng khu | Khối đế đạt 47,1% – Khối tháp đạt 30,8% |
| Quy mô tháp căn hộ | Gồm 2 tháp cao 35 tầng nổi và 2 tầng hầm đậu xe |
| Cơ cấu sản phẩm | 602 căn hộ ở & 136 căn TMDV |
| Loại hình căn hộ | Căn hộ từ 1PN đến 3PN, Shophouse khối đế, Penthouse |
| Hiện trạng pháp lý | GPXD số 17/GPXD ban hành ngày 15/05/2024, Phê duyệt 1/500 |
| Thời điểm mở bán dự kiến | Quý 1/2026 |
| Chính sách sở hữu | Lâu dài cho cư dân Việt Nam – 50 năm đối với người nước ngoài |

Hotline hỗ trợ tư vấn bảng giá và tham quan thực tế tiến độ Vlasta Premier: 0933.098.890
Nền Tảng Niềm Tin Từ Chủ Đầu Tư Dự Án Vlasta Premier
Giá trị bền vững của một sản phẩm bất động sản không chỉ nằm ở vị trí hay thiết kế, mà còn được bảo chứng bởi năng lực và tầm vóc của nhà phát triển. Với Vlasta Premier, quý khách hàng hoàn toàn có thể an tâm khi dự án được dẫn dắt bởi Văn Phú – Invest – một trong những tập đoàn kinh tế tư nhân đa ngành, có uy tín hàng đầu trong lĩnh vực đầu tư và phát triển đô thị tại Việt Nam. Lộc Phát Hưng, trong vai trò là đơn vị tư vấn và phân phối chiến lược, tự hào đồng hành cùng Văn Phú – Invest để mang đến những không gian sống tinh hoa, đáp ứng trọn vẹn những tiêu chuẩn khắt khe nhất của khách hàng thượng lưu.

Vị Thế Nhà Phát Triển Bất Động Sản Hàng Đầu Việt Nam
Văn Phú – Invest từ lâu đã khẳng định được thương hiệu “nhà phát triển tận tâm” qua những dự án có quy hoạch bài bản, hạ tầng đồng bộ và kiến trúc mang tính biểu tượng. Với hơn 20 năm kinh nghiệm thực chiến, tập đoàn luôn ưu tiên chất lượng công trình và lợi ích của cư dân làm trọng tâm phát triển. Sự nỗ lực không ngừng này đã được giới chuyên môn ghi nhận qua nhiều giải thưởng danh giá, tiêu biểu như Top 10 Chủ đầu tư Bất động sản uy tín năm 2025 và Top 10 nhà phát triển BĐS hàng đầu Việt Nam 2024. Những cột mốc này chính là lời khẳng định mạnh mẽ về năng lực tài chính và uy tín triển khai của chủ đầu tư Vlasta Premier Quận 7.

Bảo Chứng Từ Các Công Trình Biểu Tượng Đã Hiện Hữu
Sự thành công của Văn Phú – Invest được đúc kết từ danh mục dự án đa dạng, trải dài ở nhiều phân khúc và luôn nhận được sự đánh giá cao từ thị trường:
- Thảo Điền Green (Quận 2, TP.HCM): Một dấu ấn rạng rỡ của chủ đầu tư tại thị trường miền Nam. Với quy mô 30.000 m2 bao gồm 204 căn hộ hạng sang, dự án đã chính thức bàn giao vào năm 2023, tạo nên một chuẩn mực sống mới bên sông Sài Gòn với chất lượng thi công vượt trội.

- The Terra – An Hưng (Hà Nội): Tổ hợp đô thị phức hợp đa tiện ích với quy mô 3 tòa tháp cao 45 tầng, minh chứng cho kinh nghiệm quản lý và vận hành các dự án cao tầng hiện đại.
- Grandeur Palace – Giảng Võ (Hà Nội): Dòng sản phẩm bất động sản hạng sang, chú trọng vào sự tinh xảo trong kiến trúc và đẳng cấp trong không gian sống dành cho giới tinh hoa.
- Vlasta – Sầm Sơn (Thanh Hóa): Khu đô thị biển và nghỉ dưỡng quy mô lớn, khẳng định tầm nhìn chiến lược trong việc đánh thức tiềm năng các vùng đất du lịch.
Hotline hỗ trợ tư vấn bảng giá và tham quan thực tế tiến độ Vlasta Premier: 0933.098.890
Tọa Độ Độc Tôn Và Tầm Nhìn Chiến Lược Tại Vlasta Premier Quận 7
Trong quan niệm về bất động sản bền vững, “vị trí” chính là yếu tố duy nhất không thể thay đổi và cũng là hạt nhân quyết định lợi nhuận. Dự án Vlasta Premier sở hữu tọa độ độc bản ngay mặt tiền đường Đào Trí, Phường Phú Thuận, Quận 7. Đây là khu vực được định vị trở thành “trung tâm du lịch và giải trí” mới của Nam Sài Gòn với địa thế “nhất cận thị, nhị cận giang, tam cận lộ”. Lợi thế mặt tiền sông Sài Gòn không chỉ mang lại bầu không khí trong lành mà còn là biểu tượng của sự thịnh vượng và vượng khí cho chủ nhân sở hữu.

Địa Chỉ Chi Tiết Và Mạng Lưới Liên Kết Đa Chiều
Vlasta Premier tọa lạc chính xác tại Thửa đất 548, Tờ bản đồ số 85, đường Đào Trí, P. Phú Thuận, Quận 7, TP.HCM. Từ tâm điểm này, cư dân có thể dễ dàng kết nối đến các trọng điểm kinh tế và dịch vụ chỉ trong thời gian ngắn:

- Chỉ 5 phút di chuyển: Chạm ngay “trái tim” Phú Mỹ Hưng, tiếp cận hệ thống giáo dục quốc tế, Trung tâm Hội chợ Triển lãm SECC, Crescent Mall và Bệnh viện quốc tế FV.
- Khoảng 15 phút di chuyển: Kết nối thẳng đến trung tâm Quận 1 thông qua trục đường huyết mạch Huỳnh Tấn Phát.
- Tiềm năng liên kết vùng: Thông qua cầu Phú Mỹ và đặc biệt là cầu Thủ Thiêm 4 (dự kiến hoàn thành trong tương lai gần), khoảng cách giữa Vlasta Premier và khu đô thị Thủ Thiêm sẽ được rút ngắn chỉ còn vài phút di chuyển.
Cú Hích Từ Hạ Tầng Tỷ Đô Và Tiềm Năng Gia Tăng Giá Trị
Sức hút của Vlasta Premier Quận 7 được cộng hưởng mạnh mẽ từ những quy hoạch hạ tầng mang tầm vóc quốc tế, hứa hẹn tạo nên đà tăng giá bứt phá:

- Quy hoạch mở rộng đường Đào Trí lên 40m: Tuyến đường ven sông này đang dần hình thành diện mạo mới, trở thành cung đường thương mại sầm uất và đắt giá bậc nhất Quận 7, kéo theo sự gia tăng giá trị của toàn bộ các dự án tọa lạc tại đây.
- Siêu quần thể Peninsula (Mũi Đèn Đỏ): Nằm kế cận siêu dự án du lịch, giải trí có tổng vốn đầu tư 6 tỷ USD, Vlasta Premier thừa hưởng toàn bộ hệ sinh thái tiện ích đẳng cấp và đón đầu nhu cầu lưu trú, làm việc của tầng lớp chuyên gia cao cấp.
- Cầu Thủ Thiêm 4: Đây là công trình hạ tầng then chốt, giúp thay đổi hoàn toàn vị thế của Quận 7 trên bản đồ bất động sản TP.HCM, đưa giá trị đất dọc đường Đào Trí tiệm cận với mặt bằng giá tại trung tâm Thủ Thiêm.
Hotline hỗ trợ tư vấn bảng giá và tham quan thực tế tiến độ Vlasta Premier: 0933.098.890
Hệ Sinh Thái Tiện Ích Đa Tầng: Đặc Quyền Sống Khác Biệt Tại Vlasta Premier
Tại Vlasta Premier, giá trị của mỗi căn hộ không chỉ nằm ở kiến trúc mà còn được khẳng định qua hệ thống tiện ích đặc quyền, nơi mỗi chi tiết đều được Văn Phú – Invest chăm chút để nâng tầm trải nghiệm sống cho cư dân. Với triết lý kiến tạo một không gian sống “chạm vào cảm xúc”, dự án mang đến một tổ hợp tiện ích đa chức năng, giúp chủ nhân tận hưởng nhịp sống sôi động của phố thị nhưng vẫn giữ trọn sự riêng tư và yên bình của một khu nghỉ dưỡng cao cấp ngay giữa lòng Quận 7.

Tiện Ích Nội Khu: Tâm Điểm Tận Hưởng Tại Khối Đế Thương Mại

Hệ thống tiện ích tại Vlasta Premier Phú Thuận được quy hoạch bài bản tại 5 tầng khối đế, tạo nên một không gian sinh hoạt khép kín, an toàn và vô cùng tiện nghi:
- Hồ bơi vô cực ấn tượng: Điểm nhấn đặc sắc tại tầng 5, nơi cư dân có thể thả mình trong làn nước trong xanh, tách biệt hoàn toàn với tiếng ồn phố thị và phóng tầm nhìn khoáng đạt về phía sông Sài Gòn.
- Phòng Gym & Yoga hiện đại: Được trang bị máy móc tối tân, đây là không gian lý tưởng để tái tạo năng lượng và rèn luyện thể chất sau những giờ làm việc căng thẳng.




- Khu vườn dạo bộ & BBQ Garden: Không gian xanh mướt được thiết kế tinh tế, là nơi gắn kết tình thân gia đình qua những bữa tiệc ngoài trời ấm cúng.

- Nhà trẻ tiêu chuẩn cao: Môi trường giáo dục ngay trong lòng dự án, giúp các cư dân nhí có không gian phát triển toàn diện và mang lại sự an tâm tuyệt đối cho các bậc phụ huynh.


- Trung tâm Shophouse & Thương mại: Sự xuất hiện của các thương hiệu hàng đầu về ẩm thực, cafe và mua sắm giúp cư dân thỏa sức giải trí ngay dưới thềm nhà.

- Hệ thống an ninh 24/7: Bảo chứng cho sự an toàn tối đa với hệ thống camera giám sát thông minh và đội ngũ an ninh chuyên nghiệp.
Tiện Ích Ngoại Khu: Thừa Hưởng Tinh Hoa Của Khu Đô Thị Phú Mỹ Hưng
Nhờ tọa lạc tại tọa độ vàng, cư dân Vlasta Premier chỉ mất vài phút để kết nối với mạng lưới tiện ích ngoại khu tiêu chuẩn quốc tế của Nam Sài Gòn:
- Trung tâm Mua sắm & Giải trí: Chạm tay đến những thiên đường dịch vụ như Crescent Mall, SC VivoCity, Lotte Mart và siêu thị GO! (Big C) Quận 7.


- Hệ thống Y tế uy tín: Tiếp cận nhanh chóng các bệnh viện đầu ngành như Bệnh viện FV, Bệnh viện Tim Tâm Đức và Bệnh viện Quốc tế Tâm Anh.

- Môi trường Giáo dục tinh hoa: Quy tụ các trường đại học danh tiếng như RMIT, ĐH Tôn Đức Thắng, ĐH Kinh tế TP.HCM (UEH) và các hệ thống trường quốc tế đa quốc gia.


- Kết nối tài chính: Di chuyển nhanh chóng đến trung tâm tài chính Phú Mỹ Hưng, nơi tập trung các tập đoàn kinh tế lớn trong và ngoài nước.

Hotline hỗ trợ tư vấn bảng giá và tham quan thực tế tiến độ Vlasta Premier: 0933.098.890
Mặt Bằng Quy Hoạch Và Tư Duy Thiết Kế “Mở” Tại Vlasta Premier
Kiến tạo nên một không gian sống hoàn hảo bắt đầu từ việc thấu hiểu sự tương tác giữa con người và không gian. Tại Vlasta Premier, chủ đầu tư Văn Phú – Invest đã áp dụng triết lý thiết kế hướng tâm, tập trung vào việc tối ưu hóa diện tích sử dụng và tận dụng tối đa lợi thế thiên nhiên từ dòng sông Sài Gòn. Mỗi bản vẽ thiết kế tại đây không chỉ đơn thuần là việc phân chia các phòng, mà là sự sắp đặt tinh tế để mỗi góc nhỏ trong căn nhà đều tràn ngập ánh sáng và gió trời, mang lại sự thư thái tuyệt đối cho cư dân ngay tâm điểm Quận 7.

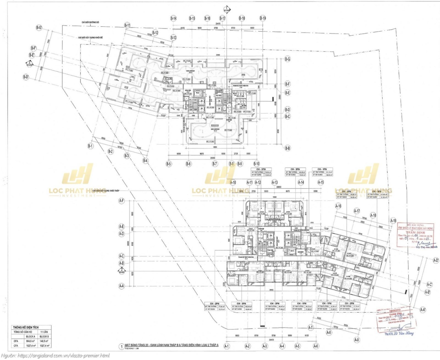
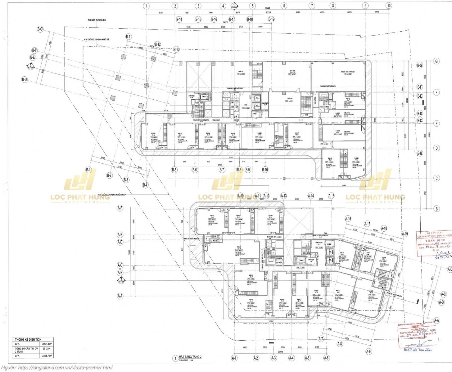
Quy Hoạch Mặt Bằng Đa Tầng – Sự Phân Lớp Không Gian Khoa Học

Trên quỹ đất vàng rộng 9.016,5 m², mặt bằng dự án Vlasta Premier được phát triển với 2 tháp căn hộ cao 35 tầng và 2 tầng hầm. Sự sắp xếp các phân khu chức năng theo chiều dọc giúp tách biệt hoàn hảo giữa không gian kinh doanh sầm uất và khu vực an cư yên tĩnh:

- Tầng hầm (Hầm 1 & 2): Khu vực bãi đỗ xe thông minh, được trang bị hệ thống phòng cháy chữa cháy và kỹ thuật vận hành tiên tiến, đảm bảo sự an toàn và thuận tiện cho phương tiện của cư dân.
- Khối đế thương mại (Tầng 1-5): Điểm đến giải trí hàng đầu với 25 căn Shophouse mặt tiền, khu nhà trẻ và 111 gian thương mại dịch vụ. Tầng 5 là nơi hội tụ các tiện ích nghỉ dưỡng như hồ bơi vô cực và sân vườn xanh mát.

- Tầng căn hộ điển hình (Tầng 6-33): Nơi bố trí các căn hộ từ 1 đến 3 phòng ngủ với mật độ căn hộ thấp trên mỗi tầng, hành lang rộng rãi và đón gió đối lưu xuyên suốt tòa nhà.
- Đặc khu Penthouse (Tầng 34-35): Những tuyệt phẩm căn hộ trên không với diện tích lớn, tầm nhìn Panorama 360 độ ôm trọn vẻ đẹp lung linh của thành phố.

Thiết Kế Căn Hộ Vlasta Premier: Tinh Tế Trong Từng Đường Nét
Mọi căn hộ Vlasta Premier đều được thiết kế vuông vức, tối ưu hóa các góc chết để gia chủ dễ dàng bày trí nội thất theo phong cách cá nhân:
- Layout Căn hộ 1PN: Diện tích từ 48.45m² đến 57.4m², tập trung vào tính linh hoạt. Không gian phòng khách nối liền ban công tạo cảm giác thông thoáng, rất phù hợp với giới trẻ năng động hoặc các chuyên gia nước ngoài.


- Layout Căn hộ 2PN: Diện tích từ 64.3m² đến 84m², là sự lựa chọn tối ưu cho các gia đình trẻ. Thiết kế 2 phòng ngủ và 2 phòng vệ sinh riêng biệt, đảm bảo sự riêng tư nhưng vẫn giữ được không khí ấm cúng cho không gian chung.

- Layout Căn hộ 3PN: Diện tích từ 93.95m² đến 103.8m², sở hữu vị trí căn góc đắt giá. Với 2 mặt thoáng, căn hộ luôn đón được sinh khí tự nhiên, không gian bếp và phòng ăn rộng rãi là nơi gắn kết các gia đình đa thế hệ.


Hotline hỗ trợ tư vấn bảng giá và tham quan thực tế tiến độ Vlasta Premier: 0933.098.890
Khám Phá Nhà Mẫu Vlasta Premier – Nơi Cảm Xúc Chạm Đến Từng Không Gian Sống
Để khách hàng có thể kiểm chứng tận mắt sự chỉn chu trong từng chi tiết bàn giao, khu nhà mẫu chung cư Vlasta Premier đã được đầu tư xây dựng vô cùng bài bản tại tâm điểm Quận 7. Không chỉ dừng lại ở việc mô phỏng diện tích, nhà mẫu là không gian trình diễn nghệ thuật kiến trúc, giúp cư dân tương lai cảm nhận thực tế về luồng ánh sáng, gió trời và chất lượng vật liệu nội thất cao cấp. Đây chính là lời cam kết mạnh mẽ nhất của chủ đầu tư Văn Phú – Invest về một không gian sống xứng tầm thượng lưu.

Tư Duy Thiết Kế Căn Hộ 1PN (55 m²) – Tối Ưu Từng Mét Vuông Diện Tích
Tại khu nhà mẫu, căn hộ 1 phòng ngủ diện tích 55 m² luôn là tâm điểm chú ý nhờ cách bố trí không gian cực kỳ thông minh và linh hoạt:



Hotline hỗ trợ tư vấn bảng giá và tham quan thực tế tiến độ Vlasta Premier: 0933.098.890
Danh Mục Vật Liệu Bàn Giao Dự Án Vlasta Premier











Pháp Lý Vlasta Premier – Tấm Khiên Vàng Bảo Vệ Lợi Ích Cư Dân Và Nhà Đầu Tư
Sức hút của Vlasta Premier không chỉ đến từ tiện ích hay vị trí, mà còn nằm ở sự minh bạch tuyệt đối của hệ thống hồ sơ pháp lý. Trong bối cảnh quỹ đất tại TP.HCM ngày càng khan hiếm, việc một dự án sở hữu đầy đủ từ Sổ đỏ khu đất đến Giấy phép xây dựng là minh chứng rõ nhất cho nền tảng tài chính vững mạnh và sự tôn trọng pháp luật của chủ đầu tư.

Nền Tảng Pháp Lý Vững Chắc: Giấy Chứng Nhận Quyền Sử Dụng Đất
Vlasta Premier Quận 7 được triển khai trên quỹ đất sạch 100%, đã hoàn thành nghĩa vụ tài chính và được cấp sổ đỏ tổng. Đây là cơ sở pháp lý cao nhất để bảo đảm quyền lợi sở hữu căn hộ lâu dài cho cư dân sau này:


- Giấy chứng nhận số BB 820391: Được UBND TP.HCM xác nhận ngày 27/12/2010.
- Giấy chứng nhận số CH 04354: Được Sở Tài nguyên và Môi trường TP.HCM phê duyệt ngày 28/07/2015.
Mốc Xây Dựng Quan Trọng: Giấy Phép Xây Dựng Số 17/GPXD
Sở Xây dựng TP.HCM đã chính thức cấp Giấy phép xây dựng số 17/GPXD vào ngày 15/05/2024. Văn bản này cho phép dự án triển khai thi công phần thân với quy mô 2 tầng hầm và 35 tầng nổi. Việc sở hữu GPXD giúp dự án đủ điều kiện mở bán theo hình thức nhà ở hình thành trong tương lai, giúp khách hàng hoàn toàn an tâm khi giao dịch.



Hệ Thống Tiêu Chuẩn Quy Hoạch Và An Toàn PCCC
Dự án còn hoàn thiện đầy đủ các văn bản pháp quy quan trọng khác:
- Quy hoạch chi tiết: Quyết định 6493/QĐ-UBND phê duyệt đồ án 1/2000, đảm bảo dự án phát triển đồng bộ với hạ tầng khu vực.



- Chủ trương đầu tư: Quyết định 5038/QĐ-UBND công nhận chủ đầu tư và mục tiêu dự án là Khu chung cư thương mại hỗn hợp cao cấp.


- An toàn sinh mạng: Văn bản thẩm duyệt PCCC số 23/TD-PCCC ngày 15/01/2024, đặc biệt với thiết kế các gian lánh nạn tại tầng 15 và 20, đảm bảo an toàn tuyệt đối cho cư dân.
Hotline hỗ trợ tư vấn bảng giá và tham quan thực tế tiến độ Vlasta Premier: 0933.098.890
Tiến Độ Vlasta Premier: Hiện Hữu Bản Lĩnh Chủ Đầu Tư Văn Phú – Invest
Tiến độ xây dựng không chỉ là những con số, mà là lời khẳng định đanh thép nhất cho năng lực thực thi của Văn Phú – Invest. Tại dự án Vlasta Premier, nhịp sống trên công trường chưa bao giờ ngơi nghỉ với sự góp mặt của tổng thầu Central Cons và đơn vị giám sát uy tín Apave. Việc tuân thủ nghiêm ngặt các quy chuẩn kỹ thuật và đảm bảo các cột mốc thi công quan trọng đã biến dự án trở thành điểm sáng rực rỡ nhất về tính thực thi tại thị trường bất động sản Quận 7 trong suốt thời gian qua.

Nhật Ký Thi Công: Tiến Độ Xây Dựng Vlasta Premier Tháng 11/2025
Mỗi tầng nhà được xây dựng tại Vlasta Premier Quận 7 đều trải qua quy trình kiểm soát chất lượng đa lớp. Việc ứng dụng công nghệ cốp pha nhôm hiện đại không chỉ giúp rút ngắn thời gian thi công mà còn mang lại độ chính xác tuyệt đối cho kết cấu bê tông cốt thép. Sự hiện diện kiêu hãnh của tòa tháp tại cung đường ven sông Đào Trí hiện nay chính là minh chứng cho một dự án “nói được, làm được”, mang lại sự an tâm tuyệt đối cho mọi nhà đầu tư.

Hotline hỗ trợ tư vấn bảng giá và tham quan thực tế tiến độ Vlasta Premier: 0933.098.890
Phân Tích Bảng Giá & Giải Pháp Tài Chính Vlasta Premier
Sở hữu những giá trị độc bản về vị trí và chuẩn mực sống, bảng giá Vlasta Premier Quận 7 được dự báo sẽ thiết lập một mặt bằng giá trị mới xứng tầm tại khu Nam. Với mức giá dự kiến từ 95 triệu/m², đây là khoản đầu tư hợp lý cho một tài sản có pháp lý minh bạch và tiềm năng tăng trưởng vượt trội.
Giá Bán Dự Kiến Căn Hộ (Cập Nhật Tháng 05/2026)
| Dòng sản phẩm | Khoảng diện tích | Giá dự kiến (Tỷ đồng) |
|---|---|---|
| Căn hộ 1 Phòng ngủ | 48m² – 57m² | 4.5 – 5.4 tỷ |
| Căn hộ 2 Phòng ngủ | 64m² – 84m² | 6.0 – 7.9 tỷ |
| Căn hộ 3 Phòng ngủ | 93m² – 103m² | 8.8 – 9.8 tỷ |
| Penthouse/Shophouse | Trên 127m² | Liên hệ hotline |
*Lưu ý: Mức giá trên mang tính chất tham khảo dựa trên phân tích thị trường. Giá chính thức sẽ được điều chỉnh dựa trên số tầng, hướng view và chính sách chiết khấu tại thời điểm mở bán.
Chính Sách Bán Hàng Đột Phá: Sở Hữu Nhà Không Áp Lực
Đặc Quyền Cho 100 Khách Hàng Đầu Tiên

- Chiết khấu ngay 1% giá trị sản phẩm cho những chủ nhân nhanh tay nhất.
- Tặng ngay 01 chiếc iPhone 17 Pro Max đẳng cấp trị giá 35 triệu đồng.
Chính Sách Mua Sỉ Và Khách Hàng Thân Thiết


- Dành cho khách hàng mua từ căn thứ 2: Chiết khấu thêm 1%.
- Miễn phí quản lý vận hành chuyên nghiệp trong 3 năm đầu.
Giải Pháp Thanh Toán Linh Hoạt Quý 4/2027


- Thanh toán chuẩn: Chia nhỏ dòng tiền mỗi 2 tháng chỉ từ 5-10%.
- Ưu đãi thanh toán sớm: Lãi suất chiết khấu 10%/năm cho số tiền đóng trước hạn.
Đòn Bẩy Tài Chính Tối Ưu


- Hỗ trợ vay 65% với lãi suất 0% trong 24 tháng.
- Ân hạn nợ gốc và miễn phí trả nợ trước hạn trong thời gian hỗ trợ lãi suất.
Hotline hỗ trợ tư vấn bảng giá và tham quan thực tế tiến độ Vlasta Premier: 0933.098.890
TƯ VẤN KHÁCH HÀNG: NHỮNG ĐIỀU CẦN BIẾT VỀ DỰ ÁN VLASTA PREMIER
⭐ Tọa độ tâm điểm của Vlasta Premier nằm ở đâu và lộ trình bàn giao tổ ấm được dự kiến khi nào?
- Địa chỉ chính xác: Dự án tọa lạc ngay mặt tiền đường Đào Trí, Phường Phú Thuận, Quận 7, TP.HCM. Đây là cung đường ven sông đắt giá bậc nhất khu Nam Sài Gòn.
- Thời điểm nhận nhà: Theo kế hoạch chiến lược của chủ đầu tư Văn Phú – Invest, dự án dự kiến bàn giao vào Quý 4/2027 sau khi chính thức mở bán vào đầu năm 2026.
- Hỗ trợ thực tế: Quý khách hàng cần tư vấn mua bán, ký gửi hoặc đăng ký xem tiến độ thực tế, vui lòng liên hệ Hotline: 0933.098.890.
⭐ Giải pháp tài chính: Giá bán, giá thuê dự kiến và chính sách vay vốn tại Vlasta Premier như thế nào?
Dưới đây là khung giá tham khảo được cập nhật theo biến động thị trường (Quý 1/2026):
- Căn hộ 1 Phòng ngủ (48m² – 57m²): Giá đầu tư từ 4.5 tỷ – Giá thuê dự kiến khoảng 15 triệu/tháng.
- Căn hộ 2 Phòng ngủ (64m² – 84m²): Giá đầu tư từ 6.0 tỷ – Giá thuê dự kiến từ 18 – 22 triệu/tháng.
- Căn hộ 3 Phòng ngủ (93m² – 103m²): Giá đầu tư từ 8.8 tỷ – Giá thuê dự kiến từ 25 – 30 triệu/tháng.
Chính sách đòn bẩy: Khách hàng có thể tiếp cận gói vay lên đến 70% giá trị căn hộ từ các ngân hàng đối tác lớn. Chủ đầu tư dự kiến sẽ áp dụng chương trình ưu đãi lãi suất đặc biệt và ân hạn nợ gốc linh hoạt giúp khách hàng tối ưu dòng tiền.
⭐ Chi tiết về quy mô xây dựng, cơ sở pháp lý và hệ thống tiện ích đặc quyền tại dự án?
- Tầm vóc dự án: Quy mô gồm 2 tòa tháp kiến trúc hiện đại với 35 tầng nổi và 2 tầng hầm đỗ xe thông minh.
- Sản phẩm cung ứng: Tổng cộng 602 căn hộ cao cấp và 136 sản phẩm thương mại dịch vụ (Shophouse, Officetel).
- Bảo chứng pháp lý: Đã kiện toàn Giấy phép xây dựng số 17/GPXD và phê duyệt Quy hoạch 1/500, đảm bảo tính sở hữu lâu dài (Việt Nam) và 50 năm (Nước ngoài).
- Hệ sinh thái tiện ích: Tập trung trọn vẹn tại khối đế 5 tầng với các tiện ích chuẩn resort: Sảnh đón sang trọng, hồ bơi tràn bờ, Gym quốc tế, vườn nướng BBQ sông, nhà trẻ và khu vui chơi sáng tạo.
⭐ Không gian trải nghiệm (Nhà mẫu) được bố trí ở đâu và làm sao để đăng ký tham quan thực tế?
- Vị trí nhà mẫu: Khu trưng bày căn hộ mẫu được Văn Phú – Invest thiết kế tinh tế ngay sát công trường dự án tại Quận 7 để khách hàng cảm nhận trực quan không gian sống và view sông.
- Thời gian vận hành: Mở cửa đón khách tất cả các ngày trong tuần (Dự kiến bắt đầu từ Quý 4/2025).
- Đặt lịch hẹn: Để được phục vụ chu đáo nhất và nhận bộ tài liệu báo giá chính thức, quý khách liên hệ 0933.098.890 để đặt lịch trước.
- ▶️▶️▶️Tải ngay bảng tính dòng tiền và lịch thanh toán chuẩn từ Văn Phú Invest tại: Vlasta Premier Phú Thuận







